Fôrt Hōmes

The Mesa
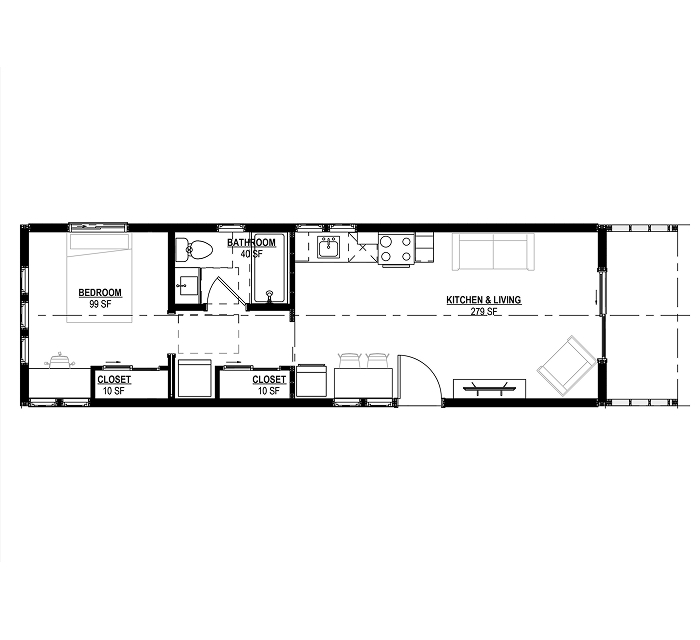
The FH500 is a compact, HUD-certified modular home that delivers the proven interior of our Cottage 11 in a faster, more cost-effective single-box build. It’s designed to be showcased in RV and resort environments while remaining fully code-compliant and scalable for real housing needs. If you’re looking for a high-quality unit that’s quick to deliver, easy to replicate, and built for real use—not just display—the FH500 hits that sweet spot.
The Comfort of a Home. The Efficiency of a Module
Fôrt Hōmes Standard
Manufacturing Advantage
Constructed entirely off-site at our Grand Junction headquarters, incorporating SIPs technology for a controlled, waste-free build process that guarantees durability and eliminates weather delays.
Delivered to your site 95% complete. This parallel processing (building the home while you prep the site) drastically accelerates project timelines and ROI.
Engineered for modern sustainability with fully electric systems, reducing infrastructure complexity for developers and utility costs for residents.
How it Works
Construction Timelines & Payment Milestones
*Pricing is for factory-built unit only. Site prep, crane, transport, and utilities are billed separately
Design & Engineering
- Permit drawings, code compliance, finish selections.
- 10% Deposit - reserve your spot in the build
Production Scheduling
- Your units are added to the fabrication calendar
- 30% Payment - materials procurement
Start Factory Construction
- 6-10 weeks depending on model and queue
- 30% Payment - start factory construction
Site Preparation
- Foundation, utilities, inspections
- 25% Payment - Pre-delivery
Delivery & Set
- Transport, crane set, onsite finish
Move-In
- Final Walkthrough, keys delivered
- 5% Payment - Final balance due within thirty (30) days after the home arrives on-site.
See What’s Inside
Specifications
Construction Type:SIP (Structural Insulated Panels)
Framing:2x10 Floor Joists 16" O.C. & 2x4 Interior Wall Framing
Insulation:SIPS
HVAC:Highly efficient electric mini-split system includes both heat and AC or similar
Water Heater:38 Gallon electric water heater
Electrical:All-electric, solar-ready
Exterior Siding: WPC
Roofing & Gutters: Black asphalt shingles, gutters, and downspouts
Windows: Andersen 100 Series | Black exterior, white interior with grid lites
Windows: + 5' Covered Porch
Cabinets: Shaker door style
Countertops: Quartz
Interior Walls: Light skip trowel drywall finish
Flooring: LVP planks
Showers: Fiberglass insert showers
Appliances: Compact Appliance Package | Stainless Steel
Designed to Show. Built to Scale
The Fôrt Homes FH500 offers the livability of a small house with the speed, efficiency, and portability of modular construction.
Not sure where to start? We’re standing by to help.
FAQs
Fort + Home offers three investment types: Stream (short-term cash flow), Alpine (mid-term balance of cash flow and growth), and Summit (long-term appreciation-driven investments).
Fort + Home’s investments are open to accredited and sophisticated investors. Learn more about accreditation requirements here.
Simply sign up on our Investor Portal, explore available opportunities, and connect with our team to begin your investment journey.
Minimum investment amounts vary by opportunity. Typically, they start at $50,000.
- 506c offerings: Publicly advertised and available to accredited investors.
- 506b offerings: Only available to pre-existing relationships with Fort + Home; requires login to the Investor Portal.
Returns vary by investment type:
- Stream: 9-10% annualized returns.
- Alpine: Target net IRRs of 18%+
- Summit: Appreciation-focused, with growth dependent on market conditions.
Yes, many of our investments offer tax benefits, including depreciation, capital gains deferral, and the option to invest through an IRA or 401(k).
- Stream: 6-24 months.
- Alpine: 3-7 years.
- Summit: 10+ years.
At the end of the term, proceeds are distributed to investors, or you may have the option to reinvest in another opportunity.