Fôrt Hōmes

The Colorado Cottage
The Colorado Cottage (Model CC21TE) was engineered to solve the 'missing middle' housing crisis without compromising on architectural character or livability. Originally developed for our flagship Trails End Community, this unit is now available as a turnkey solution for developers and municipalities. Whether deployed as a single ADU or clustered to form a high-density pocket neighborhood, the Colorado Cottage delivers architectural intention and industrial precision to any site.
Modern Design. Efficient Living. Built for Community.
Fôrt Hōmes Standard
Manufacturing Advantage
Constructed entirely off-site at our Grand Junction headquarters, incorporating SIPs technology for a controlled, waste-free build process that guarantees durability and eliminates weather delays.
Delivered to your site 95% complete. This parallel processing (building the home while you prep the site) drastically accelerates project timelines and ROI.
Engineered for modern sustainability with fully electric systems, reducing infrastructure complexity for developers and utility costs for residents.
How it Works
Construction Timelines & Payment Milestones
*Pricing is for factory-built unit only. Site prep, crane, transport, and utilities are billed separately
Design & Engineering
- Permit drawings, code compliance, finish selections.
- 10% Deposit - reserve your spot in the build
Production Scheduling
- Your units are added to the fabrication calendar
- 30% Payment - materials procurement
Start Factory Construction
- 6-10 weeks depending on model and queue
- 30% Payment - start factory construction
Site Preparation
- Foundation, utilities, inspections
- 25% Payment - Pre-delivery
Delivery & Set
- Transport, crane set, onsite finish
Move-In
- Final Walkthrough, keys delivered
- 5% Payment - Final balance due within thirty (30) days after the home arrives on-site.
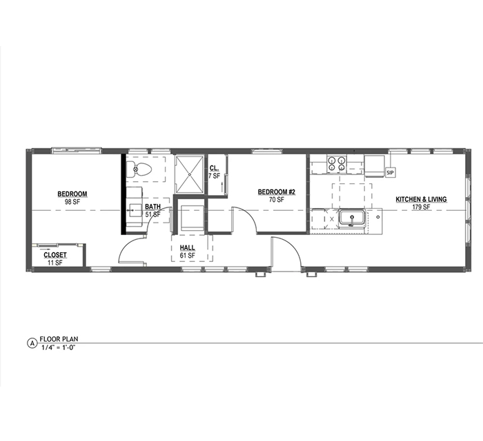
See What’s Inside
Specifications
Construction Type:SIP (Structural Insulated Panels)
Framing:2x10 Floor Joists 16" O.C. & 2x4 Interior Wall Framing
Insulation:R30+ Insulation
HVAC:details go here
Water Heater:38 Gallon electric water heater
Electrical:All-electric, solar-ready
Exterior Siding: Combination of stucco and board & batten
Roofing & Gutters: Black asphalt shingles, gutters, and downspouts
Windows: Andersen 100 Series | Black exterior, white interior with grid lites
Cabinets: Shaker door style
Countertops: Quartz
Interior Walls: Light skip trowel drywall finish
Flooring: LVP planks
Showers: Fiberglass insert showers
Appliances: Compact Appliance Package | Stainless Steel
Modern design. Efficient living. Built for community.
The Fôrt Homes Colorado Cottage brings attainable, design-forward housing to life.
Not sure where to start? We’re standing by to help.