FôrtHōmes™ · Model CKH32MR
The Ranch
Design Philosophy
Four modules. One seamless home.
Quality family housing.
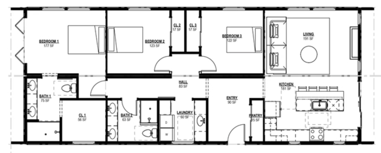
The Ranch is a three-bedroom family home built from four precision-engineered modules — each factory-completed, then professionally joined on your site to create 1,400 square feet of seamless, quality living space. Real bedrooms. Functional spaces. Room to grow. Built to last.
Rest + Retreat
The Primary Bedroom
The primary bedroom offers true separation from the main living areas — vaulted ceilings and generous square footage create a private retreat designed for rest, not just sleep.
Functional + Refined
The Primary Bath
Double vanity. Dedicated storage. Walk-in tile shower. The primary bath is built for real life — thoughtful layout that eliminates wasted space while giving you everything you need for your busiest mornings.
Floor Plan · CKH32MR
Floor Plan
Configure · The Ranch
Choose your finish.
Estimated Total
—
Select a finish package to begin
Finish Package
Interior Add-Ons
Exterior Bolt-Ons
Conceptual renderings shown. Products are not finalized until offsite permit set is obtained. Specifications are subject to change until permit set is locked. Designed and manufactured in the USA.


